Subasta Inmueble Cód. JU55

Con precio de reserva. El 100% de un inmueble ubicado en la Localidad de Chacabuco.-

La inscripción cierra en:

Descripción del bien

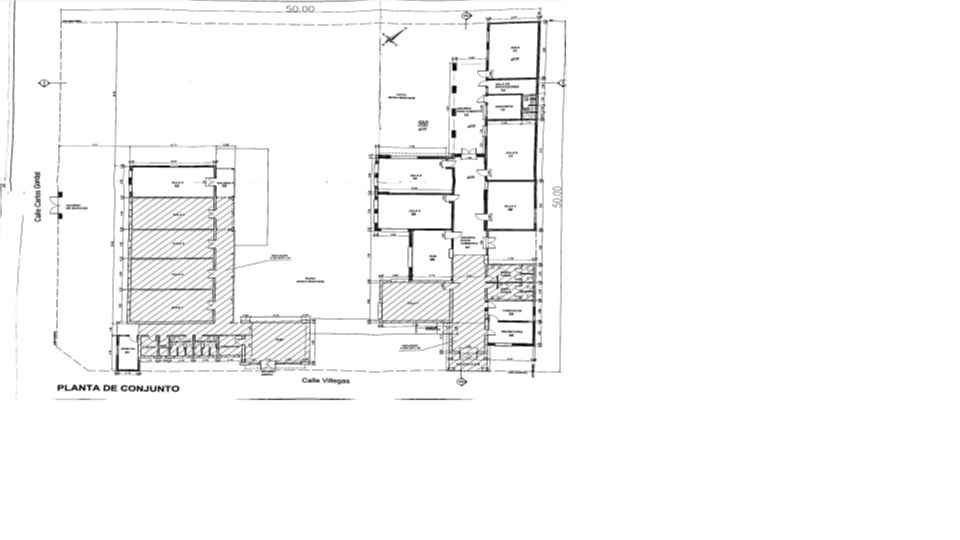
Inmueble ubicado en la Calle Villegas N° 625 esquina Carlos Gardel de la ciudad de Chacabuco, sobre un lote de 2.495 mts2, con una superficie edificada (en Dos construcciones de un total de 855 mts2), pertenecientes a la Parcela Catastral Nº 026-000471-9, Matricula 015812, Cir. I, Sec. F, Quinta 422, Parc. 3-b. La propiedad se encuentra en un buen estado de conservación. IMPUESTOS/DEUDAS: en caso de existir deudas de impuestos y tasas que graben el inmueble, las mismas se trasladaran al precio de la compra, recibiendo el adquirente el inmueble libre de todo tipo de cargas. EXHIBICION: el día 13 de Febrero de 2026 (de 09.00 a 11.00 hs).

 
11/02/2026 - 11:00 AM
 
05/03/2026 - 11:00 AM
 
19/03/2026 - 11:00 AM
 Requiere depósito en garantía
 Permite compra en comisión

Inmueble N° 1

Villegas 625 - CHACABUCO

Domicilio del inmueble

Departamento judicial
JUNIN
Localidad
CHACABUCO
Villegas 625
6740
015812
CHACABUCO (026)
0260004719

Nomenclatura Catastral

I
F
422
3-B
JUZGADO EN LO CIVIL Y COMERCIAL Nº 4 - JUNIN
Walter Gerardo Olguin
Auto de subasta
Edicto
ASOCIACIÓN MUTUAL CLUB SOCIAL DEPORTIVO ASCENSIÓN C/ CIESA COMERCIAL S.R.L. Y OTRO/A S/ EJECUCIÓN HIPOTECARIA en trámite ante el Juzgado Civil y Comercial N° 4 de Junín. SUBASTA: comenzará el día 05 de marzo de 2026 a las 11.00 hs. y finalizará el día 19 de marzo de 2026 a las 11.00 hs. PRECIO DE RESERVA/BASE: $ 310.000.000 DEPÓSITO EN GARANTÍA: $ 15.500.000 (5% de la Base). Aquel interesado en participar de la subasta deberá abonar dicho importe como mínimo 3 días hábiles anteriores al inicio de la puja virtual, en la CUENTA JUDICIAL N° 6662-027-535399-7, CBU 0140301327666253539974, CUIT 30-70721665-0 del Banco de la Provincia de Buenos Aires, Sucursal Tribunales. AUDIENCIA DE ADJUDICACION: Se llevará a cabo el día 31 de Marzo de 2026 a las 10.00 hs. en la sede del Juzgado Civil y Comercial N° 4, sito en la calle Álvarez Rodriguez N° 141 de la ciudad de Junín, a efectos de la firma del Acta de Adjudicación, debiendo comparecer el martillero y el adjudicatario, este último munido del formulario de inscripción a la subasta, comprobante de pago del depósito en garantía y demás instrumentos que permitan su fehaciente individualización como comprador en la subasta. En dicha audiencia, el vencedor deberá adjuntar el comprobante de pago de la seña, equivalente al veinte por ciento (20%) del monto que resultare vencedor y el tres por ciento (3%) en concepto de honorarios profesionales del martillero (con más el 10%, en concepto de aportes previsionales), no pudiendo computarse dentro de estas sumas las dadas en concepto de "deposito en garantía". SALDO DE PRECIO: Finalizada la audiencia a que se refiere el punto precedente, el adquirente tendrá un plazo de veinte (20) días hábiles, para depositar el saldo del precio en el Banco de la Provincia de Buenos Aires -Sucursal Tribunales Junín-, a la orden del juzgado y a cuenta de autos. COMISIÓN MARTILLERO: tres por ciento (3%) en concepto de honorarios profesionales con más el 10%, en concepto de aportes previsionales. PERMITE: compra en comisión. PROHIBE: cesión del Acta de Adjudicación. En caso de intentar la compra en comisión, deberán encontrarse inscriptos el comitente y el comisionista, ambos, en el Registro General de Subastas a los fines de la admisibilidad de su inscripción en la subasta.
ACREDITACIÓN DE POSTORES: hasta las 11.00 hs. del día 02 de marzo de 2026. A efectos de acreditar el pago del depósito en garantía los interesados deberán preinscribirse a la subasta, abonar el depósito en garantía y remitir el comprobante de pago por correo electrónico a subastas-ju@scba.gov.ar, para su validación. Cumplido, quedará perfeccionada la inscripción y se generará el código de postor, único y secreto, para participar de la subasta. DEVOLUCIÓN DE LOS DEPÓSITOS EN GARANTÍA: art. 39 Regl. Ac. 3604 y Ac. 3875, que indican que a los oferentes que no resultaron ganadores, les será devuelto en forma inmediata y automática mediante oficio a confeccionar por el Juzgado dirigido al Banco de la Prov. de Bs. As. disponiendo el reintegro a las respectivas cuentas bancarias de los participantes. Aquellos que hubieren hecho reserva de postura, tendrán la opción de mantener la oferta hasta la celebración de la Audiencia de Adjudicación (art 585, CPCC), o bien, solicitar la devolución en el Juzgado una vez finalizada la subasta. EXIMICIÓN DEL DEPÓSITO EN GARANTÍA: Para el supuesto de solicitar la eximición del depósito en garantía, el ejecutante deberá acompañar testimonio de la resolución judicial que lo exime del pago del mismo, completar el formulario de inscripción en la página web de la SCBA y presentarlo en la seccional correspondiente para su validación.
GASTOS DE ESCRITURACIÓN: el adquirente podrá requerir su indisponibilidad hasta que se le otorgue la escritura correspondiente, o se inscriba el bien a su nombre cuando se hubiere prescindido de aquella, salvo que la demora en la realización de estos trámites le fuera imputable. La indisponibilidad no regirá respecto de los gastos de escrituración y pago de impuestos (art. 581 del CPCC). INFORMACIÓN DE INTERES: Aquellos interesados en participar de la Subasta deberán encontrarse previamente registrados en el Registro de Subastas Judiciales, como Usuarios del Sistema. Consultas: Registro de Subastas Judiciales, Seccional JUNIN: Tel: 0236 4444300 (interno 41866), calle Mayor López Nro. 2, planta baja. Correo Electrónico subastas-ju@scba.gov.ar y Registro General de Subastas La Plata tel. (221) 410-4400 internos 44443, 42816, 44123, 44124, 44001; Avenida Nº 13 entre 47 y 48, Palacio de Tribunales, puerta 8, La Plata, correo electrónico: subastas@scba.gov.ar MARTILLERO: Walter Gerardo Olguin, teléfono 0236-4650086. Tiempo de Extensión: En caso que en los últimos tres minutos previos al cierre de la puja interactiva los postores realizarán ofertas, la Subasta se extenderá a fin de garantizar que los otros postores puedan mejorar la oferta. A efectos de visualizar la última postura efectuada, deberá mantener actualizada la página (pulsando F5).-
Próximo tramo Nº 1
$ 310.000.000,00
Inscripción a la subasta

Postores inscriptos

0 postores en la subasta
Suprema Corte de Justicia de la Prov. de Buenos Aires. Av. 13 entre 47 y 48 - Planta Baja - La Plata - Conmutador: (0221)-410-0214. <<< Versión: 2.2.0.1 >>>